Top.Mail.Ru
Уже 12816 пользователей с нами, зарегистрируйтесь на портале российских производителей
Комплексные транспортные технологии
Комплексные транспортные технологии
Нижегородская область, Нижний Новгород
Завод специального транспорта

Передвижной пункт медицинского освидетельствования на базе шасси Газель

(От 1 шт.)
ХОДОВАЯ И КУЗОВ
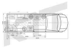
ХОДОВАЯ И КУЗОВ Тип привода – задний Коробка переключения передач Газель Next / NN – 5МКПП / 6МКПП Колесная формула 4 х 2 Дорожный просвет 170 мм Колесная база стандартное/ длинное шасси 3745/3950 мм Габаритные размеры стандартное/ длинное шасси (ДхШхВ) 6232/6932 х 2068 х 2750 мм Высота салона 1900 мм Полная масса 3500 кг/ 4600 кг
ДВИГАТЕЛЬ
Двигатель – Cummins 2.8, ISF2.8s5F148 Тип – дизельный турбированный Экологический класс – Евро 5 Рабочий объем двигателя 2,8 л Мощность двигателя 139 л с
ШАССИ И ФУРГОН
Фургон Газель Next / NN цельнометаллический белого цвета Цветографическая схема в соответствии с ГОСТ 28385-89 Внутренняя обшивка потолка и стен: композитные панели с алюминиевым покрытием, обладающие высокой стойкостью к стиранию, взаимодействию с кислотными средами, моющими и дезинфицирующими средствами Термоизоляция потолка, дверей, стен фургона Матированное наружное остекление салона Двери: сдвижная дверь в передней части, распашная двустворчатая дверь на задней торцевой части с фиксатором в открытом положении Проемы дверей оборудованы подножками, на которых предусмотрено местное освещение. Максимальная нагрузка на подножки 200 кг Пол: транспортная фанера; водонепроницаемое, антистатическое, нескользящее полимерное покрытие автолин с гидроизоляцией всех швов Люк вентиляционный Перегородка со сдвижной матированной форточкой, отделяющая кабину водителя от салона Двойное пассажирское сидение в кабине
АВТОНОМНЫЕ СИСТЕМЫ ЖИЗНЕОБЕСПЕЧЕНИЯ
Освещение: светодиодные светильники в салоне, подсветка дверных проемов Электрика фургона: электрическая сеть 220V, розетки 220V Внешний бортовой ввод на 220V, кабель внешнего ввода с УЗО для подключения к внешнему источнику энергоснабжения или генератору Фильтровентиляционная установка Автономный отопитель фургона
ДОПОЛНИТЕЛЬНОЕ ОБОРУДОВАНИЕ
Средства связи (переговорное устройство кабины с фургоном) Бортовой холодильник Резиновая дорожка для проведения пробы на устойчивость походки Комплект средств для дезинфекции салона Рабочее место персонала: рабочие сиденья для мед. персонала 2 шт, сиденье для освидетельствуемого, рабочий стол для оформления актов и заполнения журнала, направленный светильник Мебель (шкафы, полки) с возможностью крепления оборудования Вешалка для верхней одежды Съемный пластмассовый (герметичный) мусоросборник
Медицинское оборудование
Прибор для количественного определения алкоголя в выдыхаемом воздухе Анализатор для химико-токсикологических исследований Контейнер для сбора мочи с измерением температуры и pH Пробирка вакуумная для сбора мочи 50 шт Держатель для переноса мочи в пробирку 50 шт Резиновые перчатки 20 пар Термометр для измерения температуры тела 2 шт Тонометр механический 2 шт Фонендоскоп 2 шт Молоточек неврологический 1 шт
Доставка по России
Наша компания осуществляет доставку по России наших спецавтомобилей различными способами
Гарантийное обслуживание
На шасси распространяется гарантия завода-производителя (24 месяца). На фургон с оборудованием гарантия составляет 12 месяцев

Передвижной пункт медицинского освидетельствования предназначен для организации выездного медицинского освидетельствования на состояние опьянения.

Медицинский комплекс изготовлен на базе шасси Газель цельнометаллический фургон серии Next и NN. В качестве автомобильной базы доступен также автомобиль марки Atlant, Avior

Спецавтомобиль имеет утепленный фургон со сдвижной боковой дверью и задней распашной двустворчатой. Внутри фургон обшит композитными панелями, обладающими прочностью, абсолютной коррозионной и биологической стойкостью, удобными для чистки и дезинфекции.

В оснащение входят необходимые автономные системы жизнеобеспечения: светодиодное освещение, электропитание, вентиляция, отопительное оборудование и кондиционер (под заказ), внешний бортовой ввод. Комплектация включает также медицинскую мебель и оборудование, сантехнический отсек (мойка с автоматической системой подачи воды, биотуалет).

Передвижной пункт медицинского освидетельствования сертифицирован, имеет одобрение Таможенного Союза «О безопасности колесных транспортных средств» и регистрационное удостоверение Росздравнадзора.

Оставить отзыв
Похожие товары
КТТ
(От - 1 шт.)

Автомобиль скорой медицинской помощи Класса С на базе AVIOR V90

АСМП класс С
ЕТКС

Автомобиль скорой медицинской помощи класса С на базе ГАЗель NEXT A31R33 c...

КТТ
(От - 1 шт.)

Спецавтомобиль разработан для преодоления сложных географических условий,...

КТТ
(От - 1 шт.)

Мобильный офис на базе цельнометаллического фургона AVIOR V90 – функциональный...

КТТ
(От - 1 шт.)

Ритуальный автомобиль на базе фургона AVIOR V90 – это современное и...

Контакты компании
Во избежание спама контакты доступны только после регистрации.
Зарегистрироваться
Отправить сообщение Запросить прайс-лист
Пользуясь данным сайтом, вы соглашаетесь с пользовательским соглашением и политикой конфиденциальности
Размещенные цены не являются публичной офертой